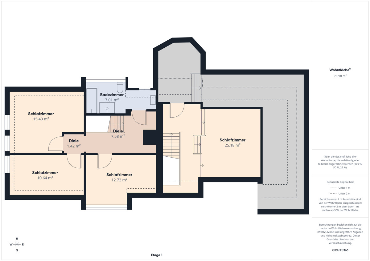
Das denkmalgeschützte Gebäude aus dem Jahr 1936 wurde ursprünglich als Schulhaus errichtet und präsentiert sich heute als außergewöhnliche Immobilie mit historischem Charakter. Aktuell ist das Objekt in zwei Doppelhaushälften aufgeteilt, die bei Bedarf baulich wieder zu einer großzügigen Einheit verbunden werden können. Insgesamt stehen ca. 274 Quadratmeter Wohnfläche auf einem weitläufigen Grundstück von rund 3.859 Quadratmetern zur Verfügung. Das reetgedeckte Haus besticht durch zahlreiche architektonische Details wie den markanten hölzernen Glockenturm als Wahrzeichen, eine Sonnenuhr im Giebel, einen Erker sowie stilgerechte Sprossenfenster. Im Jahr 2006 erfolgte eine umfassende Sanierung, bei der unter anderem Fenster, Haustüren, Fußböden und die Elektrik erneuert sowie das Dachgeschoss zu Wohnzwecken ausgebaut wurden. Die Außenanlagen umfassen ein Garagenhaus mit Reetdach und Abstellraum, ein schmiedeeisernes Eingangstor sowie einen aufwendig gestalteten Vorplatz. Beheizt wird die Immobilie über eine Öl-Zentralheizung mit 7.500-Liter-Tank.













































